Se vende espaciosa casa con patio en San Pablo Heredia 25-1276
$ 230,000
- 331502
Número de Referencia
RF114448
Country
Costa Rica
Province
Heredia
City
San Pablo
District
San Pablo
Posted
Jul 10, 2025
Condition
Used
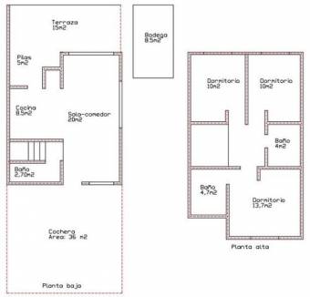
Description
Hermosa Casa en Condominio. Filial 98. Totalmente construida en mampostería (bloques de Concreto). Excelente lugar para vivir. Esta ubicada al final de la calle con un lote superior al promedio. Al frente un pequeño parque. Estacionamiento para mas de 2 vehículos por su ubicación. Casa con bodega y mucha iluminación. Seguridad 24 horas
Bedrooms
3
Bathrooms
3
Parking spaces
2
m² of construction
150
m² of lot
237
Other phone numer
WhatsApp
- 50 Views

















